Alexander Gourley Ltd (Derry / Londonderry & Donegal)

57 Glenshane Road, Drumahoe, Londonderry, BT47 3SF

2 Bed Detached Bungalow with Building Site For Sale

Offers around £200,000

Print additional images & map (disable to save ink)

Photo 1 of 57 Glenshane Road, Drumahoe, Londonderry

Telephone:

028 7134 6612

View Online:

www.jboggs.com/1059841

Key Information

Address 57 Glenshane Road, Drumahoe, Londonderry, BT47 3SF
Price Offers around £200,000
Style Detached Bungalow with Building Site
Bedrooms 2
Receptions 1
Bathrooms 1
Heating Oil
Status For sale

Additional Information

57 GLENSHANE ROAD, DRUMAHOE, BT47 3SF

CIRCA 0.5 ACRE SITE WITH FULL PLANNING PERMISSION FOR A MODERN, CONTEMPORARY HOUSE TYPE DESIGNED TO FULLY ENJOY THE VIEWS ACROSS THE RIVER FAUGHAN, YET CONVENIENTLY LOCATED WITHIN THE VILLAGE OF DRUMAHOE, CLOSE TO ALTNAGELVIN HOSPITAL AND MINUTES FROM THE CITY CENTRE

ALSO BENEFITS FROM AN EXISTING 2 BED COTTAGE ON SITE

SITE at 57 GLENSHANE ROAD

Full planning permission has been granted under application LA11/2018/0199/F. Foundations are laid and Building Control sign off has been attained for works carried out to date.

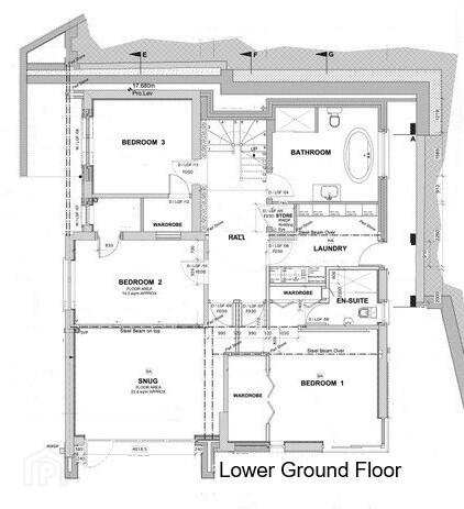
The proposed dwelling has been expertly designed offering a contemporary layout over 3 floors and, with a balcony and terrace, it encapsulates the views across the River Faughan. 

Accommodation is as follows:

Lower Ground floor - consists of a hallway, snug / living room, 3 bedrooms (main with walk-in wardrobe area and ensuite), family bathroom and laundry room with storage.

Upper Ground floor - (driveway level) consists of hallway with cloakroom and WC off, open plan sitting / dining and kitchen area with access to a balcony, utility with storage, living room with access to the terrace and fourth bedroom.

First floor – consists of reading room / study area

57 GLENSHANE ROAD

The existing 2 bedroom cottage has accommodation (measurements to the widest points) as follows:

KITCHEN / LIVING / DINING: 3.76m x 3.57m

Laminate wooden floor, range of eye level and base units with ‘woodblock’ effect worktop over, integrated ceramic hob, integrated oven, extractor fan over, stainless steel sink, space for American style fridge freezer, breakfast bar with space for washing machine and dishwasher under, feature brick fireplace with stove, recessed downlighting, 1 window, 1 radiator, power points, door to:

HALL: 4.76m x 0.92m

Hot-press with space for tumble dryer, 1 window with roller blind, recessed downlights, 1 radiator

BEDROOM 1: 2.72m x 2.14m (to widest point)

Laminate wooden floor, built-in wardrobe space, 1 window with roller blind, 1 radiator, power points, telephone point

BEDROOM 2: 2.73m x 2.55m (to widest point)

Laminate wooden floor, built-in wardrobe space, 1 window with roller blind, 1 radiator, power points, telephone point.

STORAGE: 2.74m x 1.97m

Laminate wooden floor, 1 window with roller blind, 1 Velux window, recessed downlights, power point and telephone point.

BATHROOM: 2.08m x 1.21m (to widest point)

Tiled floor, part tiled walls, WC, wash hand basin, bath with shower over, chrome towel radiator, 1 window with roller blind.

Important notice to purchasers:  We have not tested any systems or appliances at this property. Alexander Gourley Ltd, for themselves & for the vendors, whose agents they are, give notice that:-  (1)  The particulars are set out as a general outline for the guidance of intending purchasers and do not constitute part of an offer or contract, (2) All descriptions, dimensions, references to conditions & necessary permissions for use and occupation, & other details, are given in good faith & are believed to be correct, but any intending purchasers or tenants should not rely on them as statements or representations of fact, but must satisfy themselves by inspections or otherwise as to their correctness, (3) No person in the  employment of  Alexander Gourley Ltd has any authority to make or give any representation or warranty in relation to this property

  • Alexander Gourley

    Alexander Gourley Ltd (Derry / Londonderry & Donegal)

    028 7134 6612

Photo Gallery

Photo 1 of 57 Glenshane Road, Drumahoe, Londonderry Photo 2 of 57 Glenshane Road, Drumahoe, Londonderry Photo 3 of 57 Glenshane Road, Drumahoe, Londonderry Photo 4 of 57 Glenshane Road, Drumahoe, Londonderry Photo 5 of 57 Glenshane Road, Drumahoe, Londonderry Photo 6 of 57 Glenshane Road, Drumahoe, Londonderry Floorplan 1 of 57 Glenshane Road, Drumahoe, Londonderry Floorplan 2 of 57 Glenshane Road, Drumahoe, Londonderry Floorplan 3 of 57 Glenshane Road, Drumahoe, Londonderry Floorplan 4 of 57 Glenshane Road, Drumahoe, Londonderry Photo 7 of 57 Glenshane Road, Drumahoe, Londonderry Photo 8 of 57 Glenshane Road, Drumahoe, Londonderry Photo 9 of 57 Glenshane Road, Drumahoe, Londonderry Photo 10 of 57 Glenshane Road, Drumahoe, Londonderry Photo 11 of 57 Glenshane Road, Drumahoe, Londonderry Photo 12 of 57 Glenshane Road, Drumahoe, Londonderry Photo 13 of 57 Glenshane Road, Drumahoe, Londonderry Photo 14 of 57 Glenshane Road, Drumahoe, Londonderry Photo 15 of 57 Glenshane Road, Drumahoe, Londonderry Photo 16 of 57 Glenshane Road, Drumahoe, Londonderry Photo 17 of 57 Glenshane Road, Drumahoe, Londonderry Photo 18 of 57 Glenshane Road, Drumahoe, Londonderry Photo 19 of 57 Glenshane Road, Drumahoe, Londonderry

Location

Visit www.jboggs.com for further details.